Sie sind hier: Startseite » Offene Verfahren
8. Änderung (Erweiterung) des Bebauungsplanes Arbing Nr. 1 „Arbing“
Planfassung mit Stand vom 26.02.2026.
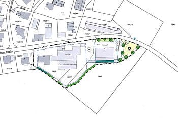
Anlass der Planung ist die Absicht der Gemeinde Reischach, das bestehende Mischgebiet minimal zu erweitern und dadurch weitere Lagerplätze für die bereits ortsansässigen Betriebe zu schaffen. Darüber hinaus ist die Errichtung eines Wertstoffhofs geplant.
Hier: Beteiligung der Öffentlichkeit gemäß § 3 BauGB.
Durchführung des Verfahrens im Regelverfahren – Hier: 2. Beteiligung
3. Änderung des Flächennutzungsplanes für das Gebiet „Arbing“
Planfassung mit Stand vom 26.02.2026.
Anlass der Planung ist die Absicht der Gemeinde Reischach, das bestehende Mischgebiet minimal zu erweitern und dadurch weitere Lagerplätze für die bereits ortsansässigen Betriebe zu schaffen. Darüber hinaus ist die Errichtung eines Wertstoffhofs geplant.
Um die Voraussetzung dieser baulichen Entwicklung zu schaffen, wird die Fläche, welche derzeit als landwirtschaftliche Fläche im rechtswirksamen Flächennutzungsplan dargestellt ist, durch das Deckblatt als gemischte Baufläche ausgewiesen. Außerdem soll die Fläche des geplanten Wertstoffhofs als Fläche für Versorgungsanlagen dargestellt werden. Die Ausgleichsfläche wird darüber hinaus verlegt, wodurch diese Fläche als Grünlandfläche ausgewiesen wird. Im Zuge der 3. Änderung des Flächennutzungsplans soll außerdem der Bereich der 7. Änderung des Bebauungsplans Nr. 1 „Arbing“ minimal angepasst und v.a. die Grünflächen zur Ortsrandeingrünung korrekt dargestellt werden.
Hier: Beteiligung der Öffentlichkeit gemäß § 3 BauGB.
Durchführung des Verfahrens im Regelverfahren – Hier: 2. Beteiligung.
Copyright 2026 © Alle Rechte vorbehalten.
News
Ansprechpartner
Veranstaltungskalender
Amtliche Bekanntmachungen
Bürgerservice-Portal
Sie sehen gerade einen Platzhalterinhalt von Vimeo. Um auf den eigentlichen Inhalt zuzugreifen, klicken Sie auf die Schaltfläche unten. Bitte beachten Sie, dass dabei Daten an Drittanbieter weitergegeben werden.
Mehr InformationenSie sehen gerade einen Platzhalterinhalt von YouTube. Um auf den eigentlichen Inhalt zuzugreifen, klicken Sie auf die Schaltfläche unten. Bitte beachten Sie, dass dabei Daten an Drittanbieter weitergegeben werden.
Mehr InformationenSie sehen gerade einen Platzhalterinhalt von Google Maps. Um auf den eigentlichen Inhalt zuzugreifen, klicken Sie auf die Schaltfläche unten. Bitte beachten Sie, dass dabei Daten an Drittanbieter weitergegeben werden.
Mehr InformationenSie sehen gerade einen Platzhalterinhalt von Google Maps. Um auf den eigentlichen Inhalt zuzugreifen, klicken Sie auf die Schaltfläche unten. Bitte beachten Sie, dass dabei Daten an Drittanbieter weitergegeben werden.
Mehr Informationen